4829 Bruce Road 3 Saugeen Shores, Ontario N0H 2C7

4 Bedroom 3 Bathroom
Raised Bungalow Fireplace Air Exchanger Forced Air

$999,900

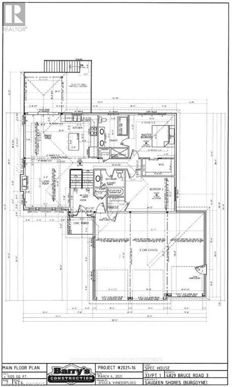
The 1325 sqft raised bungalow with finished walkout basement and 3 car garage in Burgoyne is just about complete; 30 day occupancy is available. This home has 2 + 2 bedrooms and 3 full baths. Standard features include hardwood & ceramic flooring throughout the main floor, solid wood staircase, Quartz kitchen counters, gas fireplace; concrete drive, sodded yard and more. HST is included in the list price provided the Buyer qualifies for the rebate and assigns it to the Builder on closing. Prices subject to change without notice. (id:51648)

Property Details

MLS® Number X10845984
Property Type Single Family
Community Name Saugeen Shores
Equipment Type Water Heater - Tankless
Features Flat Site, Sump Pump
Parking Space Total 9
Rental Equipment Type Water Heater - Tankless
Structure Deck

Building

Bathroom Total 3
Bedrooms Above Ground 2
Bedrooms Below Ground 2
Bedrooms Total 4
Appliances Water Heater - Tankless
Architectural Style Raised Bungalow
Basement Development Finished
Basement Features Walk Out
Basement Type N/a (finished)
Construction Style Attachment Detached
Cooling Type Air Exchanger
Exterior Finish Stone, Vinyl Siding
Fireplace Present Yes
Fireplace Total 1
Foundation Type Poured Concrete
Heating Fuel Natural Gas
Heating Type Forced Air
Stories Total 1
Type House

Parking

Attached Garage

Land

Access Type Year-round Access
Acreage No
Sewer Septic System
Size Depth 148 Ft
Size Frontage 134 Ft ,6 In
Size Irregular 134.5 X 148 Ft
Size Total Text 134.5 X 148 Ft|under 1/2 Acre
Zoning Description R1-2

https://www.realtor.ca/real-estate/27481055/4829-bruce-road-3-saugeen-shores-saugeen-shores

Contact Us

Contact us for more information

Generating Captcha

Hayden Duplantis
Salesperson

(226) 930-0792

RE/MAX Land Exchange Ltd Brokerage (Pe)
645 Goderich St., P.o. Box 1246
Port Elgin, Ontario N0H 2C0

(519) 389-4600
(519) 389-4618
www.remaxlandexchange.ca

Debbie Duplantis
Broker

(519) 389-7385
(519) 389-4618
www.realestateportelgin.com/

RE/MAX Land Exchange Ltd Brokerage (Pe)
645 Goderich St., P.o. Box 1246
Port Elgin, Ontario N0H 2C0

(519) 389-4600
(519) 389-4618
www.remaxlandexchange.ca